Anliker AG Generalunternehmung

Entwässerungskonzept Überbauung Erne-Areal, Richensee

Auftraggeber

Anliker AG Generalunternehmung

Realisation

2020 - noch offen

Weitere Beteiligte

JONGER Architekten GmbH

Projektinhalte

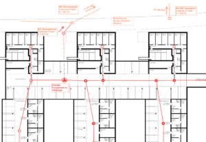
  • Ausarbeitung Entwässerungskonzept einer neuen Wohnüberbauung (Richtprojekt)
  • Entwässerung gemäss den gesetzlichen Vorgaben
  • Förderung des lokalen Wasserkreislaufs durch Begrünung, Rückhalt, Versickerung und Verdunstung
  • Koordination mit Architekten

Erbrachte Leistungen

  • Ausarbeitung Konzept zur Entwässerung des Schmutz- und des Regenabwassers
  • Grobprojekt der Leitungen inkl. Dimensionierung
  • Dimensionierung Teich
  • Unterlagen als Beilage zu Baueingabe

Besonderes & Facts

  • Überbauung befindet sich direkt angrenzend ans Schutzgebiet des Baldeggersees
  • Sehr hohe Wasserstände bei Hochwasser und dadurch Rückstaugefahr in die Leitungen
  • Grösstenteils oberflächliche Versickerung, in Kombination mit einem Teich
  • Gezielte Verdunstung durch Bepflanzung mit Schilf und Teichbinse

Termine

Abgabe Konzept: 2020
Ausführungszeit noch nicht definiert